100 Devol Ct
$499,000
Crescent City, CA 95531

Type:
MANUFACT. ON LAND
Bedrooms:
3
Bathrooms:
2
Square Feet:
1728
Acres:
1.07
Garage:
Detached Garage
Stories:
1 Story
Heating:
Forced Air
Year Built:
1992
View:
Trees
Address:
100 Devol Ct
Listing Date:
2025-11-22 18:10:00
Lot Size:
159X281 Irregular
Area:
LAKE EARL
Zoning:
RRA-1
Water or Sewer:
WELL SEPTI
Sewer/Water:
Roof:
Fireplace:
Wood Stove
Utilities:
Appliances:
Dishwasher, Range/Oven
Virtual Tour:
Construction:
Foundation:
Perimeter
Interior Condition:
Above Average
Exterior Condition:
Above Average
Manufactured/Mobile:
Foundation System
Topography:
Level
Interior Featuers:
Floors-Laminate, Smoke Detector
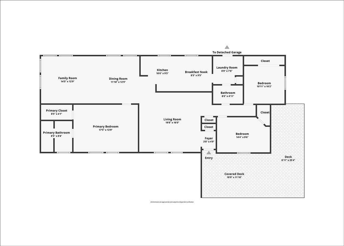
Welcome to 100 Devol Ct — A serene retreat tucked beneath towering redwoods on a peaceful cul-de-sac. The property sits on 1.07 picturesque acres, this beautiful 3 bedroom, 2 bath home offers privacy, nature, and spacious living just minutes from town and outdoor recreation. Step inside to a large open floor plan with a wood stove in the living room to add extra coziness with abundant natural light and views of the surrounding forest. The generous great room with large picture windows looking out onto the redwood grove flows seamlessly into the dining space and kitchen, creating a warm and inviting space for gatherings. A covered front porch provides the perfect place to relax while taking in the quiet beauty of the redwoods. The primary bedroom includes an en-suite with a large garden tub and walk-in closet. Two additional well-sized bedrooms offer flexibility for family, guests, or office space. Plenty of room to expand, garden, or build your dream outdoor entertaining area.
This listing provided by: Paula Magarino of Potter Real Estate Group, Inc, Cell: 707-321-5688


IDX information is provided exclusively for personal, non-commercial use, and may not be used for any purpose other than to identify prospective properties consumers may be interested in purchasing. Information is deemed reliable but not guaranteed. The listing broker’s offer of compensation is made only to participants of the MLS where the listing is filed.