105 Georgetown
$380,000
Crescent City, CA 95531

Type:
SINGLE FAMILY
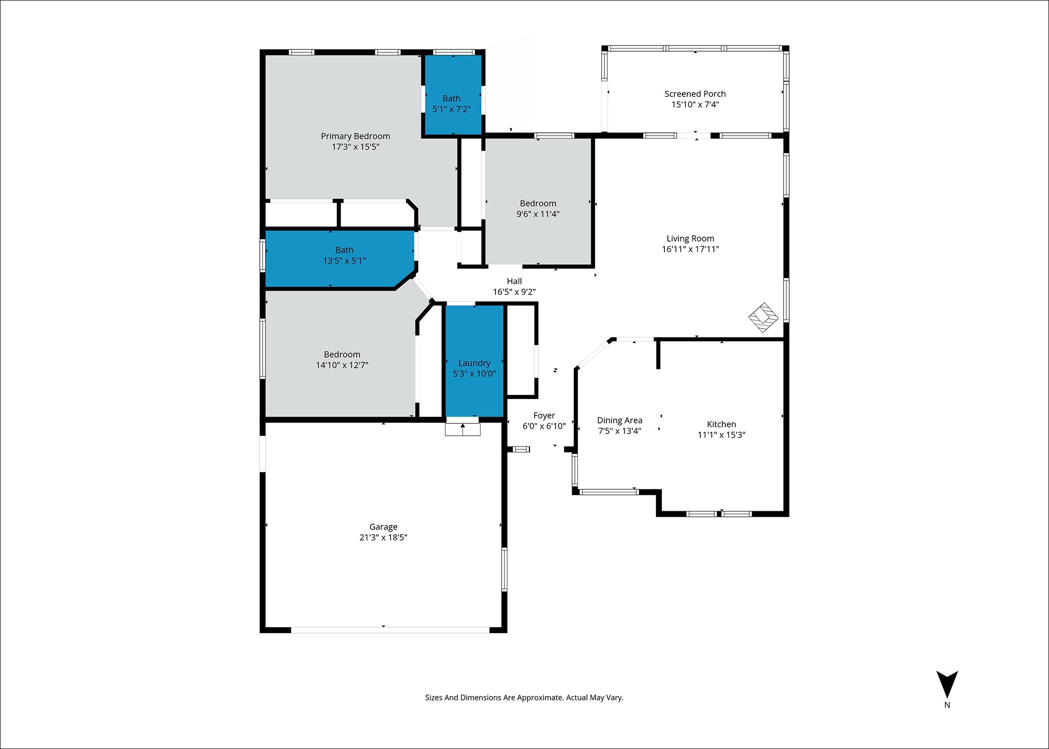
Bedrooms:
3
Bathrooms:
2
Square Feet:
1512
Acres:
0.22
Garage:
Attached Garage
Stories:
1 Story
Heating:
Other
Year Built:
1992
View:
Area
Address:
105 Georgetown
Listing Date:
2026-03-05 04:33:50
Lot Size:
0
Area:
CRESCENT CITY
Zoning:
R-1
Water or Sewer:
PUBWTR SWR
Sewer/Water:
Roof:
Fireplace:
Utilities:
Construction:
Foundation:
Concrete Slab
Interior Condition:
Exterior Condition:
Charming, single-level home with a bright, open feel and thoughtful layout! This 3-bedroom, 2 bathroom home offers a spacious and functional floor plan designed for comfortable everyday living and easy entertaining. Step inside to a light-filled living room featuring vaulted ceilings, recessed lighting, and beautiful wood flooring. Large windows and glass doors invite in natural light and provide seamless access to the backyard, creating a warm and welcoming atmosphere. A cozy freestanding stove adds charm and character to the main living space. Make your way into the kitchen which flows nicely into the dining area, making gatherings effortless. Kitchen features beautiful granite countertops and an abundance of storage. A generous primary suite offers plenty of space to unwind complete with two closets and a en-suite bathroom. Enjoy outdoor living in the fully fenced backyard with room to garden, play, or relax. The bonus sunroom extends your usable space and is perfect for morning coffee or evening wind-downs. The attached two-car garage and dedicated laundry area add everyday practicality. With its inviting curb appeal, comfortable layout, and versatile living spaces, this home is ready for its next chapter. Don’t miss the opportunity to make it yours!
This listing provided by: Angel Verdugo of Alder Point Real Estate Inc


IDX information is provided exclusively for personal, non-commercial use, and may not be used for any purpose other than to identify prospective properties consumers may be interested in purchasing. Information is deemed reliable but not guaranteed. The listing broker’s offer of compensation is made only to participants of the MLS where the listing is filed.