125 W Washington Boulevard
$529,000
Crescent City, CA 95531

Type:
TRIPLEX
Units:
3
Square Feet:
1900
Acres:
0.36
View:
Area
Year Built:
1948
Address:
125 W Washington Boulevard
Listing Date:
2026-04-06 19:36:17
Lot Size:
0
Zoning:
C2
Stories:
2 Story
Water or Sewer:
PUBWTR SWR
Roof:
Composition, Rolled
Heating:
Electric, Heat Pump, Wall
Utilities:
Appliances-Electric, Electric
Appliances:
Dishwasher, Dryer, Garbage Disposal, Range/Oven, Refrigerator, Washer
Virtual Tour:
Area:
CRESCENT CITY
Subdivision:
None
Foundation:
Concrete Slab
Interior Condition:
Above Average
Exterior Condition:
Above Average
Property Description:
Within City Limits
Exterior:
T111, Other
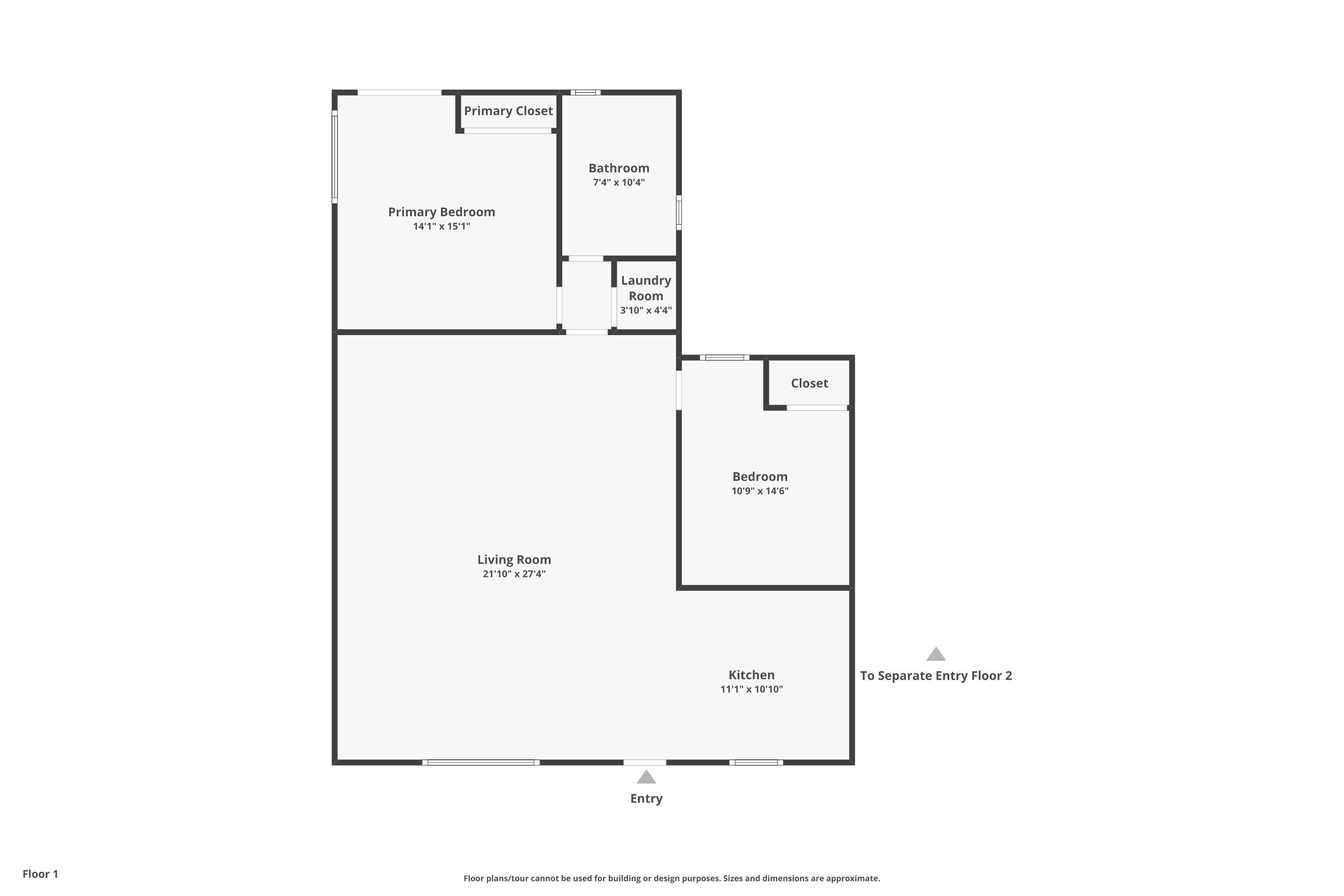
Triplex with Shop & RV Hookups – Versatile triplex offering multiple income opportunities in a convenient Crescent City location. This property features three units, a large attached shop, and RV hookups — providing flexibility for investors or owner-occupants. The front unit is a well-appointed 2 bedroom, 1 bath featuring a large living room, LVP flooring, and spacious bathroom. Additional features include a ductless heat pump, pellet stove, and sliding glass door from the primary bedroom to a spacious rear deck, creating a comfortable outdoor living space. The second unit offers 2 bedrooms and 1 bath with LVP flooring and a functional layout. The third unit is a 3 bedroom, 1 bath with LVP flooring and a ductless heat pump. This unit is currently renter occupied, offering immediate income potential. All three units feature their own dedicated laundry rooms, adding convenience for tenants and increasing long-term rental appeal. The property also includes a large attached shop with a 14-foot roll-up door, ideal for storage, workspace, or additional potential uses. Three RV hookups provide additional income opportunities or flexible use options. With multiple units, shop space, and RV hookups, this property offers a strong combination of income potential and utility in Crescent City.
This listing provided by: Roland Verdugo of Alder Point Real Estate Inc


IDX information is provided exclusively for personal, non-commercial use, and may not be used for any purpose other than to identify prospective properties consumers may be interested in purchasing. Information is deemed reliable but not guaranteed. The listing broker’s offer of compensation is made only to participants of the MLS where the listing is filed.